Продается дом Чехова, Хмельницкий, Хмельницкая, Юго-Западный (№ 22-193-803)
Цена: 30 000 $

Адрес: Чехова, Хмельницкий, Хмельницкая, Юго-Западный
Характеристики
| Цена: | 30 000 $ |
|---|---|
| № объекта: | 22-193-803 |
| Тип: | дом |
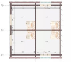
| Площадь дома: | 92 м2 |
Описание
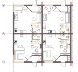
Продовжується будівництво європейських таунхаусів у центрі міста. Поспішайте, поки що існують привабливі пропозиції для наших клієнтів. При будівництві враховуються всі потреби найвибагливішого покупця. Залишилась обмежена кількість.
Наповнення будинку при здачі:
1.Свайний фундамент. Газобетон Аерок 300мм, зовнішнє утеплення мінватою 100мм, внутрішня звукоізоляція мінватою стін.
2. Двозонний електро-лічильник, електрокотел , бойлер.Тепла підлога на 1-му поверсі.
3.Дровяний камін, централізоване водопостачання та водовідведення,2 санузла. Вікна енергозберігаючі в 3 скла , броньовані двері.
4.Право власності на будинок та землю під ним.







