Сдается объект Кам'янецька, 52, Хмельницкий, Хмельницкая, Центр (№ 1-590-013)
Цена: 35 000 грн.

Адрес: Кам'янецька, 52, Хмельницкий, Хмельницкая, Центр
Характеристики
| Цена: | 35 000 грн. |
|---|---|
| № объекта: | 1-590-013 |
| Тип: | торговые площади |
| Этаж: | 1 / 5 |
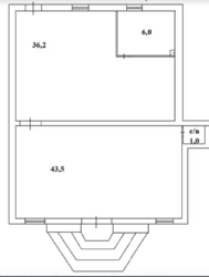
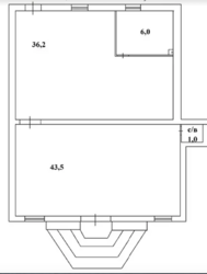
| Площадь: | 86,7 м2 |
Описание
Аренда помещения в центре города в хорошем проходном месте возле остановки Торговый центр, адрес ул. Каменецкая, 52.
Большой красивый фасад, отлично просматриваемый со всех сторон, отдельный вход, витринные окна.
Состоит из двух больших залов, помещения под кабинет-кухню и санузла.
Хороший ремонт и освещение.
Имеется вход снаружи для ручной загрузки-выгрузки товара.
Отличный вариант под магазин, офис, отделение банка, аптеку, оптику, или любой другой вид деятельности.
Звоните сейчас и успейте арендовать прекрасное помещение в прекрасном месте для Вашего бизнеса. Нежилое помещение в жилом доме 2 помещения 1 этаж из 5 Общая площадь 86.7 м? · полезная 80 м? Дополнительно плата по счетчикам и за отопление















