Продаю собственный хостел, 'гостевой дом' Новосельского 100 (№ 2-443-625)
Цена: 170 000 $

Адрес: Новосельского ул., Одесса, Одесская, Приморский
Характеристики
| Цена: | 170 000 $ |
|---|---|
| № объекта: | 2-443-625 |
| Этаж: | - / 4 |
| Площадь: | 290 м2 |
Описание
Продаю свой действующий бизнес с 2016г ' Tapki Hostel' .На первом этаже 140 метров, 3 номера ( 19м, 15м, 9м ) с общей зоной 37 м, кухней и 3 сан.узлами на 8 гостей, комната администратора 5м. Большой семейный номер 45м на 4 гостей с собственной ванной и выходом во внутренний двор-сад 30м. Видеонаблюдение в общей зоне и в саду, АГВ.
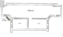
Подвал 150м. (99м,19 м,19 м, 13м) проведена замена всех коммуникаций. Есть 7 окон в приямках, МП. В сан.узле 13м. разводка труб, накопительный бак на 500л, стяжка, звукоизоляция.
















