Продается объект Тернопільська, 10/4, Хмельницкий, Хмельницкая, Юго-Западный (№ 2-481-642)
Цена: 33 200 $

Адрес: Тернопільська, 10/4, Хмельницкий, Хмельницкая, Юго-Западный
Характеристики
| Цена: | 33 200 $ |
|---|---|
| № объекта: | 2-481-642 |
| Этаж: | -1 / 1 |
| Площадь: | 224 м2 |
Описание
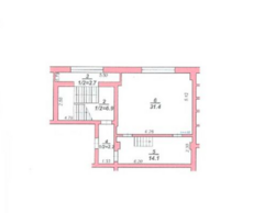
Терміново продається цокольне приміщення з метало пластиковими вікнами, утепленим фасадом 10мм пінополістиролом, комунікаціями, є парко місця та рампа, кран-балка, документи на приміщення в порядку, загальною площею 224, 00м.кв., висота стелі 4, 5м, за адресою м. Хмельницький, вул.Тернопільська, 10/4. Найкраще підійде для автомайстерні, виробництва меблів. Ціна найнижча в цьому районі.





