Продаж квартири на Озерній (№ 211-308-617)
Цена: 20 500 $

Кармелюка, Хмельницкий, Хмельницкая, Озёрная
Характеристики
| Цена: | 20 500 $ |
|---|---|
| № объекта: | 211-308-617 |
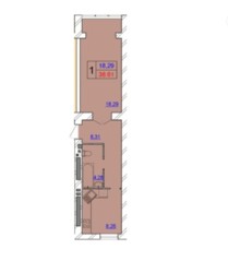
| Комнат: | 1 |
| Этаж: | 8 / 10 |
| Площадь: | 42 / - / 10 м2 |
| Санузел: | 1 совмещенный |
| Материал: | кирпич |
Описание
Продаж однокімнатної квартири у зданному будинку, підключені комунікації та частково заселений будинок.
Двохстороннє планування! Проруч ТЦ 'агора'. загальна кількість м2 при здачі будинку була перерахована



