Продаж двокімнатної квартири у новобудові! (№ 211-313-568)
Цена: 23 500 $

Трудова, Хмельницкий, Хмельницкая, Автовокзал №1
Характеристики
| Цена: | 23 500 $ |
|---|---|
| № объекта: | 211-313-568 |
| Комнат: | 2 |
| Этаж: | 6 / 9 |
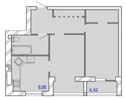
| Площадь: | 56 / - / 9 м2 |
| Санузел: | совмещенный |
| Балкон: | лоджия |
| Угл/не угл: | Не угловая |
Описание
В квартирі виконані роботи від будівельників:
- Високоякісні металопластикові вікна (3 скла),
- Вхідні двері,
- Штукатурка стін,
- мідна електророзводка по усій квартирі,
- встановлення усіх лічильників із виготовленням техпаспорту,
- індивідуальна система опалення із встановленим двоконтурним котлом,
- паркінг,гаражі,
- будинок на сваях, цегляний із утепленням.
- Індивідуальне планування квартири (Безкоштовно)
- Внутрішній двір з дитячим майданчиком закритого типу.
- Поряд зупинки та ТРЦ.
Квартира некутова на теплу сторону у цегляному, утепленому будинку. Є можливість довільного планування.







